Продается квартира

Обзор
Стоимость

4 500 000

Возможное назначениеСалон красоты
Тип зданияЖилой дом
Тип парковкиНа улице
Вход cian (avito)Отдельный с улицы
Тип сделки авито коммерческаяПродажа
РемонтХороший
СанузелРаздельный
Планировка cianСмешанная
Планировка avitoКабинетная
Отделка помещения коммерческаяОфисная
Право собственностиПосредник
Способ связи avitoПо телефону и в сообщениях
Состояние cianТиповой ремонт
Ремонт коммерческаяхороший
Тип отопления cianцентральное угольное
Статус готовностиВ эксплуатации
Удаленность от дороги (авито)Первая линия
ЭлектричествоЕсть
Тип здания (Avito)Жилой дом
Тип коммерческойПомещение свободного назначения
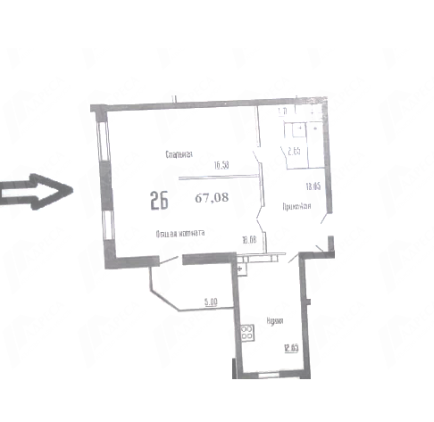
Площадь, кв.м.64.7
Этаж1
Этажность9
Адрес
Населенный пунктАстрахань
Улицаулица Энергетическая
В избранное Продается квартира

🏢 Продается уютная квартира в развитом районе города! 

Адрес:ул. Энергетическая, 19

Площадь: 64.7кв.м

Количество комнат: 2

Статус помещения : ЖИЛОЕ

Описание:

Продается светлая и уютная квартира, расположенная в одном из самых удобных районов города. Квартира находится на 1 этаже, что обеспечивает удобство для проживания  семьи с детьми. Комнаты изолированы. Просторная кухня. Разденьный санузел. Две сплитсистемы. Хороший ремонт. 

Преимущества квартиры:

Помещение идеально подходит под парикмахерскую, салон красоты, косметологию или офис. Статус помещения, жилое. Есть отдельный вход, можно демонтировать. 

Инфраструктура: В шаговой доступности школы, детские сады, магазины и остановки общественного транспорта.

Дополнительная информация:

Квартира юридически чистая, без обременений, один взрослый собственник. Возможна продажа по ипотеке и другим формам расчета.

Не упустите шанс стать владельцем этой замечательной квартиры! Реальному покупателю торг! 

Звоните  прямо сейчас для просмотра!

 

Расположение

Важно! На карте не всегда указано точное местоположение. Более точную информацию можно узнать у менеджера, разместившего объект